項目概述:
南京海陵藥業有限公司隸屬于揚子江藥業集團,主要從事醫藥研發、生產、加工、和銷售的高科企業,霍比特環保此次主要針對固體樓新增流化床增加一套廢氣凈化裝置,包含樓頂廢氣收集管道,末端廢氣治理設施以及排放煙囪。

廢氣處理設備:
設備:噴淋塔
風量:4500CMH

廢氣處理工藝:
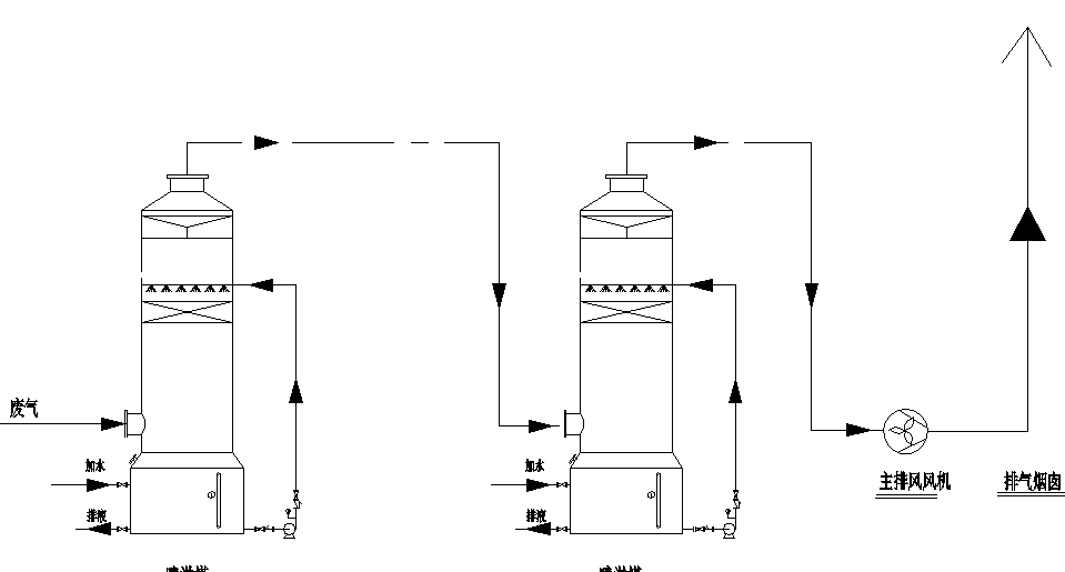
流化床產生廢氣主要為乙醇以及顆粒物,根據我公司長期治理類似廢氣項目經驗,廢氣治理工藝為二級水噴淋,處理效率能夠達到80%以上。
工藝流程見下圖:

項目概述:
南京海陵藥業有限公司隸屬于揚子江藥業集團,主要從事醫藥研發、生產、加工、和銷售的高科企業,霍比特環保此次主要針對固體樓新增流化床增加一套廢氣凈化裝置,包含樓頂廢氣收集管道,末端廢氣治理設施以及排放煙囪。

廢氣處理設備:
設備:噴淋塔
風量:4500CMH

廢氣處理工藝:
流化床產生廢氣主要為乙醇以及顆粒物,根據我公司長期治理類似廢氣項目經驗,廢氣治理工藝為二級水噴淋,處理效率能夠達到80%以上。
工藝流程見下圖:
